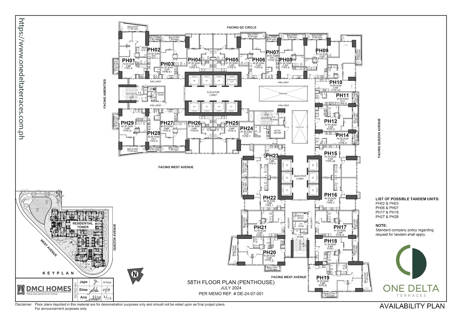
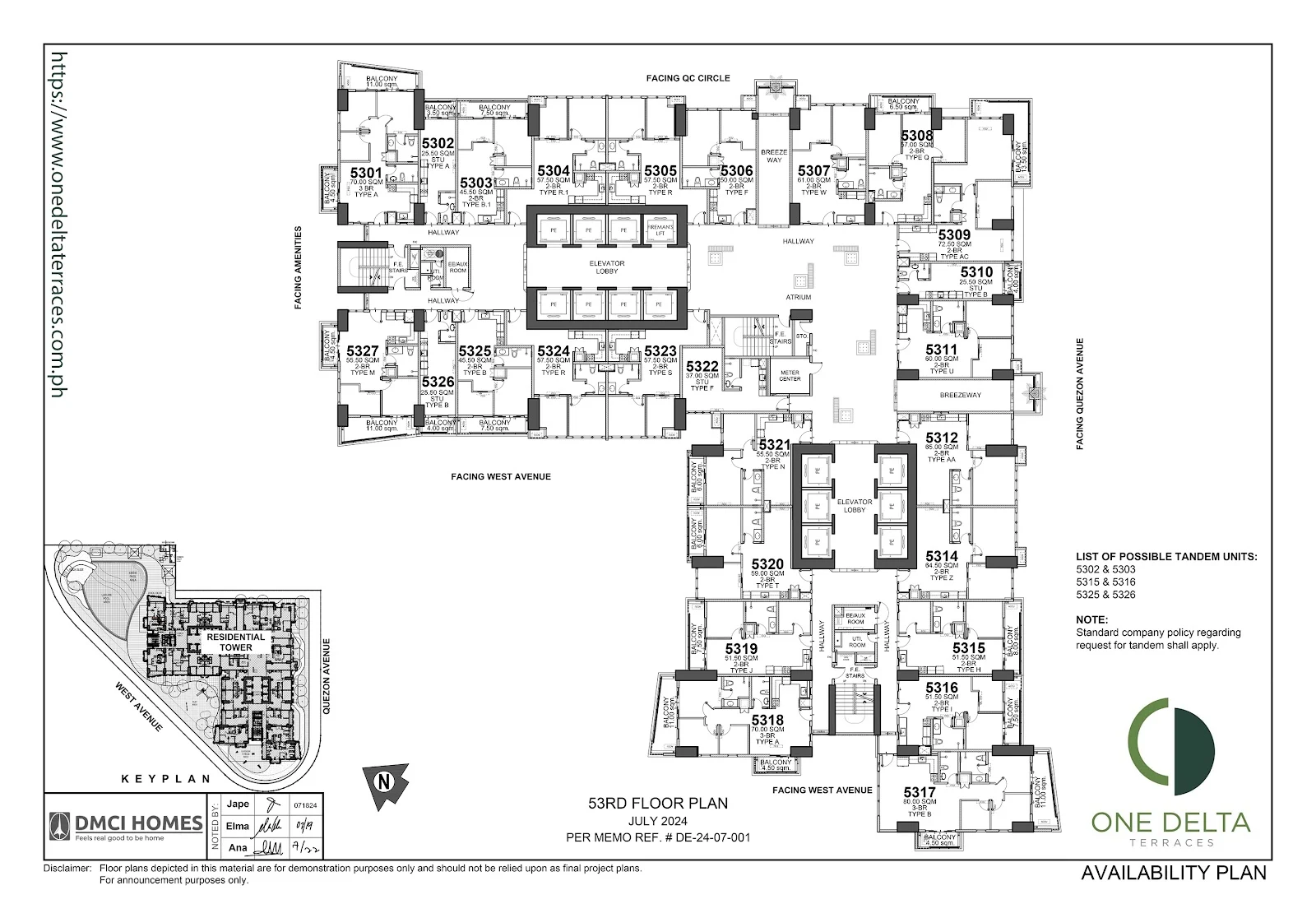
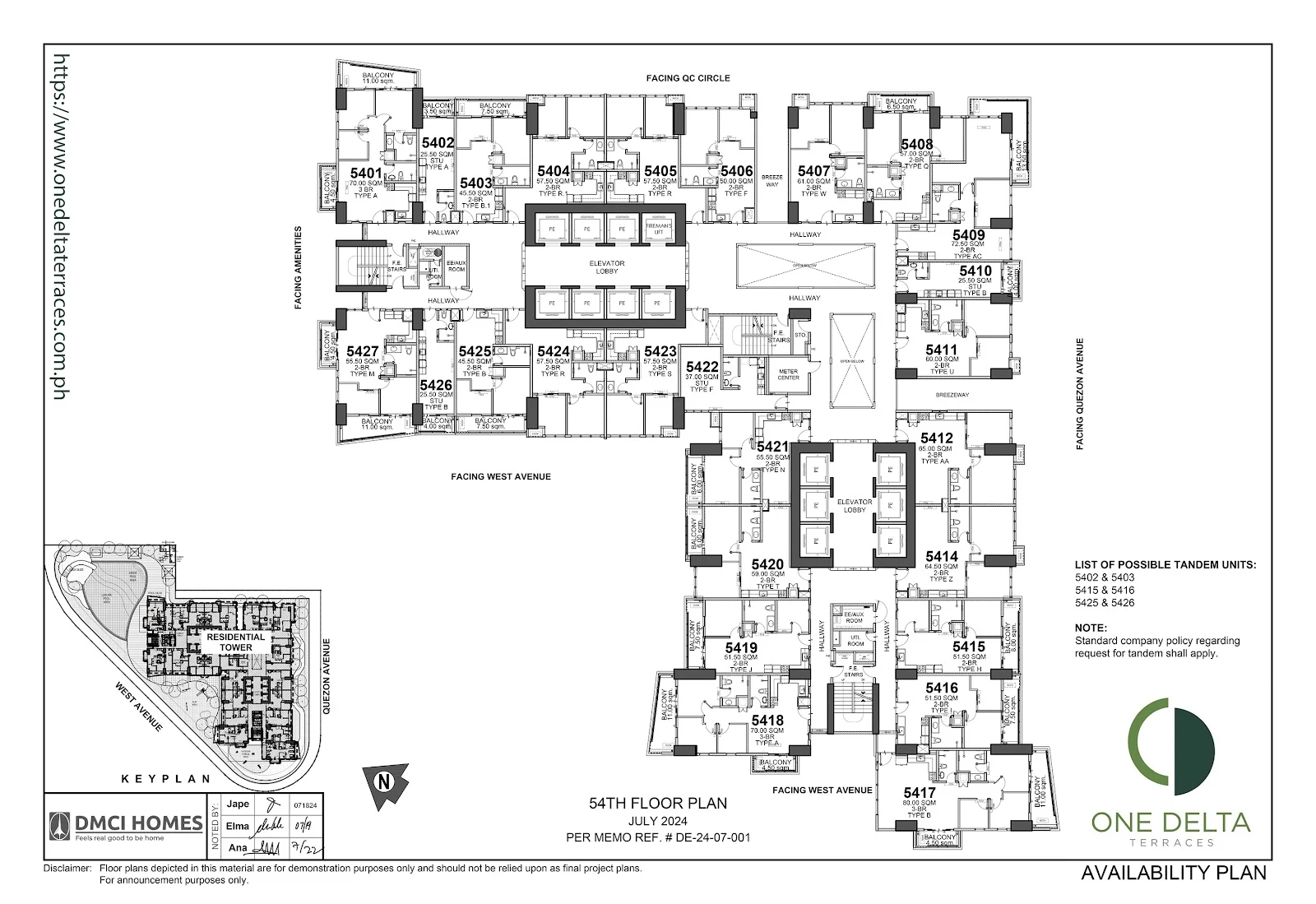
Floor Plans

Browse the complete collection of floor level plans for One Delta Terraces — a high-rise residential condominium by DMCI Homes located along Quezon Avenue cor. West Avenue, Brgy. West Triangle, Quezon City. Each floor plan shows the bird's-eye layout of an entire building level — unit positions, corridor arrangement, and building orientation — across Typical residential floors and open-air Atrium Floors that bring natural light and ventilation deep into the building core.

All Floor Plans
Typical Floors
Atrium Floors
Loading floor plans...

Your Family Deserves a Home That Grows With You

More than an investment — a peaceful space where memories are made. Let Mia™ find your ideal unit, at your own pace, backed by AI-Driven Investment Intelligence.

Zero commitment required A-Quick personalized walkthrough Live pricing, no surprises
1 of 6

Experience One Delta Terraces intelligent unit matching powered by AI.

Ask Mia™ what you’re looking for — she’ll match you with your ideal unit at One Delta Terraces using AI-Driven Investment Intelligence.

Step 1 / 6

Find Your Perfect Unit

Mia™, your AI Investment Advisor, will walk you through 5 tailored questions to match you with the right unit at One Delta Terraces.

Floor Level Plan

Building-wide floor layout for your selected unit's level.

AI DP Calculator

Review your selected unit and get an instant downpayment breakdown.

Search Results